NEW

高知市南万々A号地(建築条件付き)売土地

1,990万円

高知県高知市南万々

土讃線「円行寺口」駅徒歩8分

とさでん交通伊野線「上町二丁目」駅徒歩20分

価格
1,990万円
坪単価
46.6万円(42.70坪)
所在地
高知県高知市南万々
交通

土讃線円行寺口」駅 徒歩8分

とさでん交通伊野線上町二丁目」駅 徒歩20分

土地面積(坪数)
141.19㎡(42.70坪)
建ぺい率 / 容積率
60% / 200%

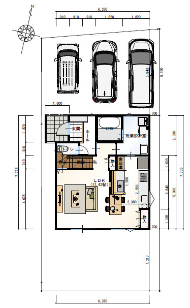
物件の特徴

  • バストイレ別

  • カウンターキッチン

セールスポイント

薬や日用品を買うのに便利なよどやドラッグ 高知南万々店まで406mです♪土地購入をお考えの方にイチオシの売地がこちらです♪不動産探しから購入、そしてアフターフォローまで当社が親切丁寧にサポートいたします♪地元のことを知り尽くしているスタッフの揃う当社へぜひお任せください♪ご連絡をお待ちしております(*^^*)

ポイント

衣類乾燥機 耐震構造 平坦地 高断熱住宅 2沿線利用可

担当者のコメント

門田 大介

高知市周辺で不動産購入・売却をお考えなら、ライズホーム株式会社にお任せください!!
弊社では新築戸建て・中古住宅・土地などさまざまな不動産情報を取り扱っております。
リフォームについてもご相談承っております!
お気軽にお問い合わせ&ご来店ください‍(^-^)/

基本情報

販売区画数
1区画
総区画数
4区画
土地面積(坪数)
141.19㎡(42.70坪)
坪単価
46.6万円
私道負担面積
割合
-
セットバック
記載なし
建ぺい率 /
容積率
60% / 200%
高圧線下面積
-
傾斜地部分面積
-
路地状敷地
-
地目
宅地
地勢
-
造成工事
完了予定
-
土地権利
所有権
建築条件
都市計画
市街化区域
用途地域
第一種中高層住居専用
接道状況
一方(北 公道 間口 7.7m)
国土法届出要否
不要
最適用途
-
その他
法令上の制限
-
取引態様
仲介
現況
更地
引渡条件
-
引渡時期
相談
開発許可番号
-
取引条件の
有効期限
2026年03月02日

設備条件

設備条件
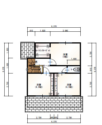
  • 公営水道 / 公共下水 / 電気有 / 駐車3台可 / 耐震構造 / システムキッチン / カウンターキッチン / バス・トイレ別 / トイレ2ヶ所 / 浴室1坪以上 / ウォークインクロゼット / 食品庫 / 複層ガラス
設備(その他)
    乾太くん完備

その他

物件番号
100391148
管理コード
-
情報更新日
2026年02月16日
次回更新予定日
2026年03月02日
取扱会社
  • ライズホーム株式会社
  • 高知県高知市北竹島町6-9 
  • TEL:088-855-7658
  • 高知県知事 (1) 第3034号
  • 公益社団法人 全国宅地建物取引業保証協会高知本部
備考
■地盤保証20年
■建物保証20年(住宅瑕疵保険10年+延長保証10年)

周辺施設

  • TSUTAYA中万々店の画像

    書店

    TSUTAYA中万々店

    715m(9分)

  • サニーマート中万々店の画像

    スーパー

    サニーマート中万々店

    761m(10分)

  • ダイソー高知万々店の画像

    ディスカウントショップ

    ダイソー高知万々店

    761m(10分)

  • 四国銀行万々支店の画像

    銀行

    四国銀行万々支店

    761m(10分)

  • 高知市立城北中学校の画像

    中学校

    高知市立城北中学校

    901m(12分)

支払いシミュレーション

月々の支払額
9.6
購入希望物件価格
万円
頭金
万円
金利
%
返済額(ボーナス1回分)
万円
返済期間

※ボーナスは自動で年2回分で計算されます。

近隣の物件

  1. 高知市南万々B号地(建築条件付き)売土地

    高知市南万々

    - (140.78㎡)

    1,9795,050

  2. 高知市南万々C号地(建築条件付き)売土地

    高知市南万々

    - (168.84㎡)

    2,3018,738

  3. 高知市南万々D号地(建築条件付き)売土地

    高知市南万々

    - (168.96㎡)

    2,302万円

  4. 高知市鴨部上町4号地(建築条件付き)売土地

    高知市鴨部上町

    - (129.83㎡)

    1,5708,000

よく見られている物件

  1. 高知市高須新町4丁目 売り土地

    高知市高須新町4丁目

    - (194.18㎡)

    1,550万円

  2. 高知市長浜 売土地

    高知市長浜

    - (452.79㎡)

    500万円

  3. 高知市鴨部1号地 売地(建築条件付き)

    高知市鴨部2丁目

    - (132.15㎡)

    1,320万円

  4. 高知市神田コモデン(建築条件付き)売土地

    高知市神田

    - (219.94㎡)

    1,7297,800

高知市南万々A号地(建築条件付き)売土地

高知市南万々A号地(建築条件付き)売土地

1,990万円

-(141.19㎡)

お気軽にお問い合わせください

LINEからお問い合わせ 無料お問い合わせ

ライズホーム株式会社

088-855-7658

10:00~19:30

(休:不定休)