高知市高須3丁目 新築戸建て

2,950万円

高知県高知市高須3丁目

とさでん交通後免線「東新木」駅徒歩4分

価格
2,950万円
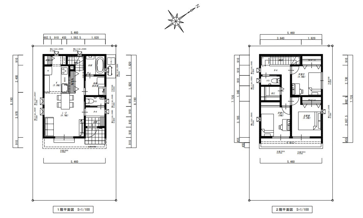
間取り/建物面積
3LDK/77.84㎡
所在地
高知県高知市高須3丁目
築年
2025年5月(新築)
駐車
有(2台)
交通

とさでん交通後免線東新木」駅 徒歩4分

高知市高須3丁目 新築戸建ての基本情報

物件名
高知市高須3丁目 新築戸建て
価格
2,950万円
建物面積
77.84㎡
土地面積
30.29坪(100.14㎡)
築年月
2025年5月(新築)
総戸数
-
所在地
高知県高知市高須3丁目
交通

とさでん交通後免線東新木」駅 徒歩4分

高知市高須3丁目 新築戸建ての詳細情報

設備条件
  • 閑静な住宅地
  • 駐車2台可
設備(その他)
    -
駐車場/月額
有(2台)/-
土地権利
所有権
国土法届出
不要
用途地域
第一種中高層住居専用
取引態様
一般媒介
引渡し
即時

高知市高須3丁目 新築戸建てで募集中の物件

  1. 23.54坪 (77.84㎡)

    2,950万円(125.32万円/坪)

周辺施設

  • 高知市立高須小学校の画像

    小学校

    高知市立高須小学校

    1342m(17分)

  • 高知市立青柳中学校の画像

    中学校

    高知市立青柳中学校

    1789m(23分)

近隣の物件

  1. 高知市秦南町2丁目

    5DK (93.78㎡)

    1,440万円

  2. 高知市朝倉本町2丁目

    3LDK (84.45㎡)

    3,580万円

  3. 高知市鴨部

    4LDK (89.91㎡)

    3,580万円

  4. 高知市竹島町

    3LDK (85.29㎡)

    2,380万円

高知市高須3丁目 新築戸建て

お気軽にお問い合わせください

LINEからお問い合わせ 無料お問い合わせ

ライズホーム株式会社

088-855-7658

10:00~19:30

(休:不定休)