いの町枝川 新築戸建

3,300万円

高知県吾川郡いの町枝川

とさでん交通伊野線「枝川」駅徒歩1分

価格
3,300万円
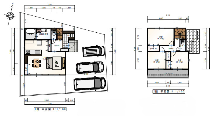
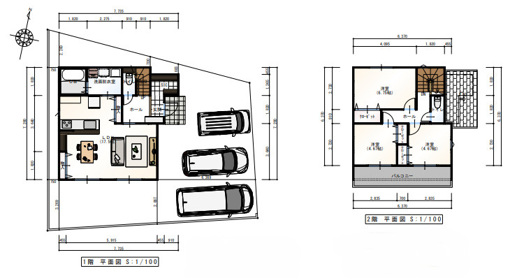
間取り/建物面積
3LDK/87.77㎡
所在地
高知県吾川郡いの町枝川
築年
2025年11月(新築)
駐車
交通

とさでん交通伊野線枝川」駅 徒歩1分

いの町枝川 新築戸建の基本情報

物件名
いの町枝川 新築戸建
価格
3,300万円
建物面積
87.77㎡
土地面積
44.05坪(145.62㎡)
築年月
2025年11月(新築)
総戸数
-
所在地
高知県吾川郡いの町枝川
交通

とさでん交通伊野線枝川」駅 徒歩1分

いの町枝川 新築戸建の詳細情報

設備条件
  • 駐車3台可
設備(その他)
    -
駐車場/月額
有/-
土地権利
所有権
国土法届出
不要
用途地域
第一種住居
取引態様
仲介
引渡し
2025年11月下旬

いの町枝川 新築戸建で募集中の物件

  1. 26.55坪 (87.77㎡)

    3,300万円(124.29万円/坪)

周辺施設

  • 枝川公園の画像

    公園

    枝川公園

    420m(6分)

近隣の物件

  1. 吾川郡いの町枝川

    7LDK (199.58㎡)

    2,980万円

  2. 吾川郡いの町枝川

    3LDK (80.16㎡)

    2,098万円

  3. 吾川郡いの町枝川

    4LDK (103.02㎡)

    2,798万円

  4. 吾川郡いの町枝川

    4LDK (103.02㎡)

    2,998万円

よく見られている物件

  1. 高知市朝倉本町2丁目

    3LDK (84.45㎡)

    3,580万円

  2. 香美市土佐山田町東本町1丁目

    5LDK (102.06㎡)

    3,290万円

  3. 高知市福井町

    3LDK+S(納戸) (105.99㎡)

    4,480万円

  4. 土佐市宇佐町宇佐

    3LDK (110.96㎡)

    1,580万円

いの町枝川 新築戸建

お気軽にお問い合わせください

LINEからお問い合わせ 無料お問い合わせ

ライズホーム株式会社

088-855-7658

10:00~19:30

(休:不定休)